Projekte


Holzmodulbauweise Zukunftsfähige Unterkünfte für Geflüchtete in Dresden

       



Aufgabe

Dresden steht vor der Aufgabe, langfristig nutzbare Unterkünfte für Geflüchtete zu schaffen. Bisherige Lösungen in Form umgenutzter Bestandsgebäude wie Schulen, Kindergärten oder Hotels konnten funktional und wirtschaftlich nicht überzeugen. Insbesondere energetische Defizite, hohe Betriebskosten sowie unzureichende Flächenkonzepte machten deutlich: Es braucht eine systemische, zukunftsgerichtete Antwort.

Modularität und Bauweise

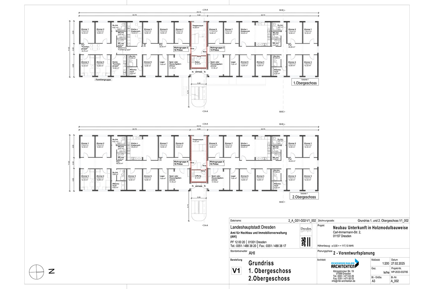
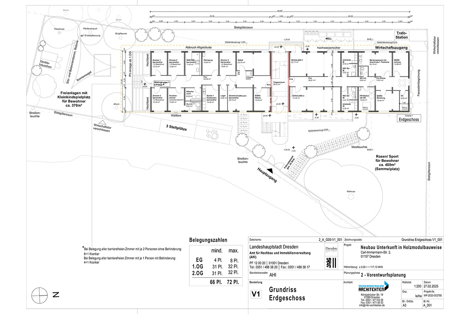
Im Rahmen einer standortneutralen Vorplanung wurde der Neubau einer Unterkunft für 66 Personen in serieller Holzmodulbauweise entwickelt. Ziel ist eine wirtschaftlich, energetisch und funktional optimierte Gebäudestruktur, die flexibel auf unterschiedliche Standorte im Stadtgebiet Dresden adaptierbar ist. Die exemplarische Untersuchung erfolgte am Standort Carl-Immermann-Straße 2 in Dresden-Cotta.

Planungsansatz

Vorgesehen ist ein modulares Gebäudekonzept auf Basis industriell vorgefertigter Raummodule. Die verwendeten Modultypen können in unterschiedlichen Ausprägungen realisiert werden:

  • Holzmassivmodule – aus Mehrschichtplatten (verleimt oder leimfrei)
  • Holztafelbaumodule – in klassischer Holzständerbauweise
  • Hybridmodule – mit tragenden Stahlrahmen und Holz-Ausfachung
  • Kombinierte Lösungen – mit massiven Bauteilen und Holzrahmenelementen
Die Vorplanung orientiert sich an Hybridmodulen mit Stahlrahmen, da diese sich besonders gut demontieren und an anderen Standorten wiederverwenden lassen – ohne Totalverlust technischer Installationen.

Baulogistik und Technikkonzept

Die Module werden auf eine vorbereitete Gründung aufgesetzt und sind bei Anlieferung vollständig ausgebaut, inklusive Sanitärzellen. Nach dem Versetzen erfolgen lediglich die Anbindung der Hauptverteilleitungen sowie Hausanschlüsse für Fernwärme, Strom, Wasser, Daten und Glasfaser. Die Dachflächen werden vor Ort ergänzt mit:

  • extensiver Begrünung
  • PV-Anlagen
  • integrierten Technikaufbauten

Zielstellung

Das Konzept der Holz-Modulbauweise stellt eine wirtschaftlich nachhaltige Alternative zu temporären Übergangslösungen dar. Die Gebäude können stadtweit verteilt, in gleichbleibender Qualität und mit hoher Baugeschwindigkeit realisiert werden. Gleichzeitig wird ein wertiger architektonischer Ausdruck mit hoher Aufenthaltsqualität angestrebt – im Einklang mit Klimazielen und urbaner Einbindung.

Ort

Carl-Immermann-Straße 2, 01157 Dresden

Bauherr

Landeshauptstadt Dresden
Amt für Hochbau und Immobilienverwaltung

Kategorie

Wohnungsbau

Kennwerte

Belegung
66 Plätze
Bausumme
k.A.
Planung
2025
Leistungen
Vorplanung LPh 2

Holzmodulbau

Studie Holzmodule

Holzmodulbau

Studie Holzmodule

Holzmodulbau

Lageplan

Holzmodulbau

Grundrissvariante EG

Holzmodulbau

Grundrissvariante Obergeschosse

Holzmodulbau

Fassadenvariante

Holzmodulbau

Alternativgrundriss

Holzmodulbau

Alternative Fassadenvariante

Holzmodulbau

Alternative Standortvarianten


ähnliche Projekte

Mehrfamilienhaus Zinnwalder Straße

Mehrfamilienhaus Zinnwalder Straße

Mehrfamilienhaus in Holzbauweise

Holzpalais Wilder Mann Dresden

Mehrfamilienhäuser Hübler Straße

Mehrfamilienhäuser Hübler Straße

Holzpalais Penthouse

Reihenhäuser